|
 |
|
銷售一部
鄭經理 0510-88301230
手機 15852539554
QQ 1983545134
銷售二部
沈經理 15852796716
QQ 913604226
銷售三部
劉經理 18706194598
QQ 470087325
技術部 手機 18706194598
公司傳真 0510-88791377
公司郵箱 sales@wxxqjb.com
公司網站 www.w0999.com
地址:無錫惠山經濟開發區前洲配套區余浩路3號
|
|
|
|
|
|
|
|
|
|
1、概述
本系列是在原化工部標準HG5-747-78的基礎上改進和發展的產品,其中PV型肛用窄V帶傳動,效率高,壽命長;PT型采用同步齒形帶傳動,其外形緊湊,傳動比準確,無滑差又節能。
本系列減速機輸出軸只有一種形式,并配套供應夾殼聯軸器(HG5-213-65),若有特殊要求,須在訂貨時說明。
本系列允許正反方向運轉,也可用于有防爆要求的場合,除配上防爆電機外,還須配上專用防靜電V帶。 |
|
2、減速機選型表 |
|
傳動比i |
4.53 |
3.63 |
4.53 |
3.63 |
2.96 |
減速機型號 |
輸出轉速 |
200 |
250 |
320 |
400 |
500 |
電機功率 |
6電1000r/min |
4電1500r/min |
P/n代號 |
0.55 |
× |
× |
1 |
3 |
7 |
PA2
PV1
PT1 |
0.75 |
× |
1/6 |
2 |
4 |
8 |
1.1 |
2/6 |
3/6 |
11 |
5 |
9 |
1.5 |
5/6 |
4/6 |
12 |
6 |
10 |
2.2 |
6/6 |
7/6 |
16 |
13 |
14 |
PA4
PV2,PT2 |
3.0 |
1/6 |
8/6 |
17 |
19 |
15 |
4.0 |
2/6 |
3/6 |
18 |
20 |
22 |
PB4
PV3,PT3 |
5.5 |
1/6 |
4/6 |
1 |
21 |
23 |
7.5 |
2/6 |
4/6 |
2 |
4 |
7 |
PC3
PV4
PT4 |
11 |
3/6 |
5/6 |
3 |
5 |
8 |
15 |
× |
6/6 |
1 |
6 |
9 |
18.5 |
× |
× |
2 |
3 |
5 |
PC5
PV5,PT5 |
22 |
× |
× |
× |
4 |
6 |
|
 |
|
|
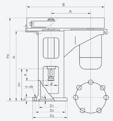
3、P型減速機主要參數及尺寸 |
|
機型號 |
輸出軸直徑d |
許用出軸扭矩 |
中心距A |
傳動比 |
外形及安裝尺寸 |
減速機自重 |
PA,PB
PC,PV |
PT |
B |
H0 |
H |
H1 |
e |
D1
H8 |
D2 |
D3 |
C |
h |
n-d0 |
PA,PB
PC,PV |
PT |
PA3,PV1
PT1,PA4
PV2,PT2 |
30k6 |
58 |
286 |
260 |
4.53 |
790 |
470 |
770 |
645 |
343 |
75 |
240 |
285 |
315 |
5 |
16 |
6-14 |
123 |
325 |
308 |
3.63 |
2.96 |
PB4
PV3
PT3 |
40k6 |
135 |
423 |
364 |
4.53 |
985 |
820 |
935 |
780 |
406 |
95 |
260 |
320 |
355 |
6 |
18 |
6-18 |
220 |
432 |
3.63 |
440 |
2.96 |
PC3,PV4,PT4,/
PC5,PV5,PT5 |
55m6/
65m/6 |
360/
720 |
654 |
485 |
4.53 |
1400 |
1150 |
1000 |
850 |
450 |
125/
145 |
325 |
400 |
435 |
6 |
22 |
8-18 |
400/
485 |
654 |
3.63 |
643 |
2.96 |
|
|
注:PB4若選用帶括弧的安裝尺寸,訂貨時請注明。 |
|